El Alcalde de Coria presenta el proyecto de remodelación del Mercado de Abastos

El Mercado Municipal de Abastos de Coria cambia de formato y estrategias comerciales.

El alcalde de Coria, José Manuel García Ballestero, ha presentado el proyecto de remodelación del Mercado Municipal de Abastos de Coria, con la intención de incorporar nuevas oportunidades a Coria.

El detalle de las obras lo ha definido el ayuntamiento, ya que es el que mejor conoce las necesidades de la localidad, lo que supondrá «poner en valor ese espacio, además de crear oportunidades de negocio y generación de empleo», según manifestó el primer edil.

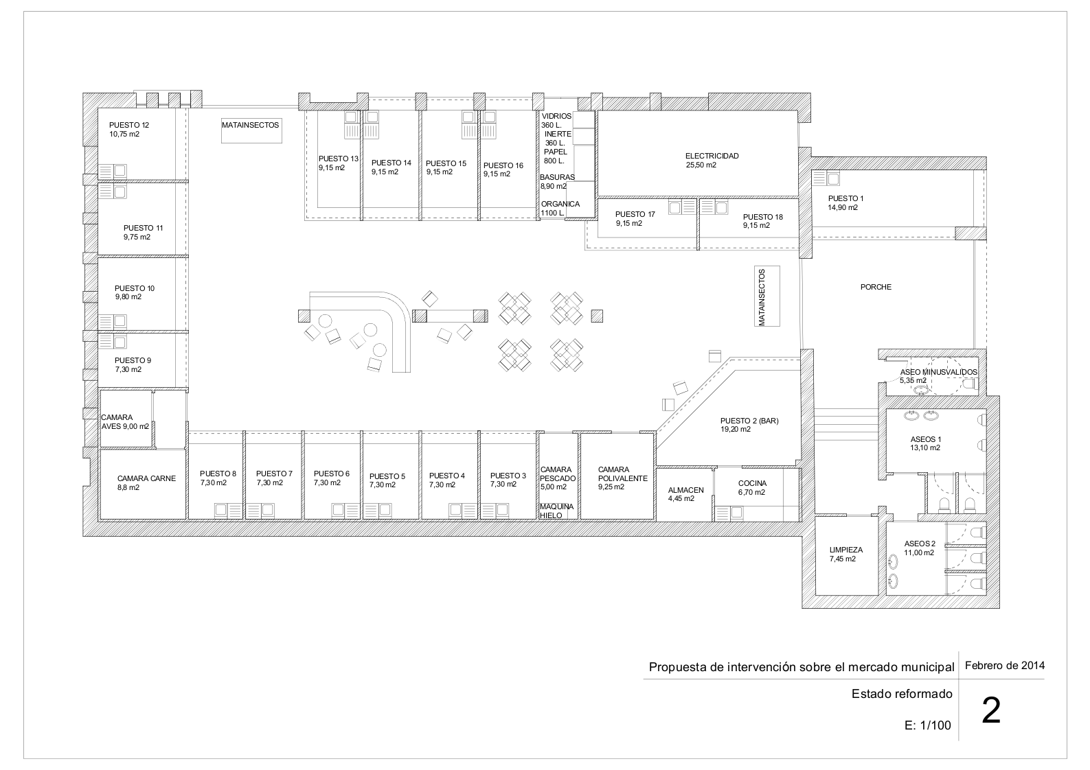
Será un mercado «adaptado a los nuevos tiempos» y contará con quince puestos para ofrecer especialmente productos frescos, dando especial cabida a los producidos de Coria y comarca, degustación de los mismos in situ, así como de artesanía típica de nuestros pueblos cercanos.

Un mercado municipal competitivo que supone un beneficio para los consumidores y los ciudadanos, facilitando el acceso a una mayor oferta de productos, donde comparar alternativas de compras y lo que supondrá un ahorro importante en cuanto a tiempo y coste de desplazamiento.

Según dijo García Ballestero, «este proyecto de reorientación del mercado de Coria representa una apuesta por el desarrollo del concepto de experiencia de compra, que pasa por la remodelación con criterios de accesibilidad, exterior e interior, las entradas, la disposición de las vitrinas, mezcla comercial de puestos y paradas, incorporación de elementos de comunicación visual y sonoro de los puntos de ventas, la señalética y la comunicación, los elementos de ambientación, organización de eventos y la propia configuración de los puestos de venta, además de presencia en las redes sociales, muy importantes en los tiempos en los que estamos, ya que son un escaparate hacia los ciudadanos de Coria como a todos aquellos turistas que nos visiten».

Este mercado será un lugar de encuentro donde hacer la compra, degustar productos, adquirir la artesanía de nuestras comarcas y conocer sus técnicas de elaboración, o simplemente pasear y tomar algo.

Resumen de privacidad

Bienvenida/o a la POLÍTICA DE COOKIES de la página web de la entidad AYUNTAMIENTO DE CORIA, provista de NIF P1006800E, donde te explicaremos en un lenguaje claro y sencillo todas las cuestiones necesarias para que puedas tener el control sobre ellas en base a tus decisiones personales.